Dieses Objekt wurde bereits erfolgreich vermittelt.
Diese Immobilie wird Ihnen gefallen, denn die Vielfältigkeit der Nutzungsmöglichkeiten
lässt keine Wünsche offen.
Im Erdgeschoss verfügen sie neben dem Windfang und Gäste-WC über einen großzügigen Wohn,-Essbereich mit offener Küche(Einbauküche Bulthaupt) gemütlicher sichtgeschützter Terrasse mit direktem Zugang in den herrlichen Garten.
Im Obergeschoss befinden sich 3 große Zimmer, Bad und Küche sowie eine großzügige Loggia(dieser Bereich kann mit wenigen Handgriffen sicher zu einer eigenständigen Wohnung umgenutzt werden).
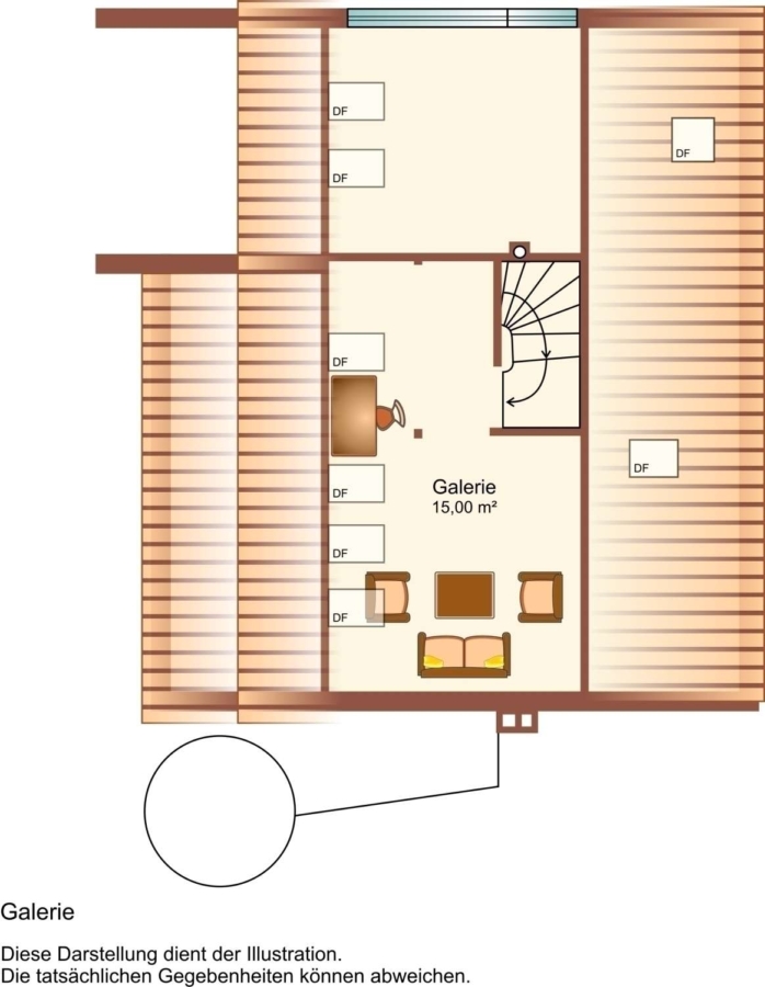
Im Jahre 1995 wurde das Objekt aufgestockt, so dass hier eine traumhaft schöne weitere Maisonette-Wohnung entstanden ist. Die Wohnung bietet einen großen hellen Wohn,-Essbereich mit offener Küche(hochwertige Einbauküche) große Dachterrasse mit
herrlichem Fernblick, Schlafzimmer, Abstellraum und Bad. Im Maisonette-Bereich
verfügen Sie über die Galerie, alles lichtdurchflutet und topmodern.
Natürlich ist Ihr neues Heim komplett unterkellert, neben den üblichen Keller,-und Vorratsräumen verfügen Sie hier über einen großen Hobbyraum und last but not least
die integrierte Garage mit elektrischem Torantrieb.
Eine Besichtigung sagt mehr als 1000 Worte, deshalb vereinbaren Sie noch heute Ihren persönlichen Besichtigungstermin unter 06181 – 26 26 0
Wenn Sie die Immobilien-Karte anzeigen, übertragen Sie Daten an Google Maps (Datenschutzerklärung).
63456 Hanau-Klein Auheim, Deutschland (auf Google Maps ansehen)
Verkaufen mit Klarheit, Erfahrung und Verlässlichkeit. Vom ersten Gespräch bis zur Schlüsselübergabe.
Dörnigheimer Str. 16 63452 Hanau
06181 26260
info@mki-immobilien.de
Copyright © 2026 Marketing Lead